Plug and Play Office Space Having 20 Workstations, 1 Manager Cabin, 1 Conference Room, Pantry, Lift, Reception, Ac, 2 Washrooms, 1 Car Parking, Server Room, Onsite Manager, Security, 100 DG Backup.









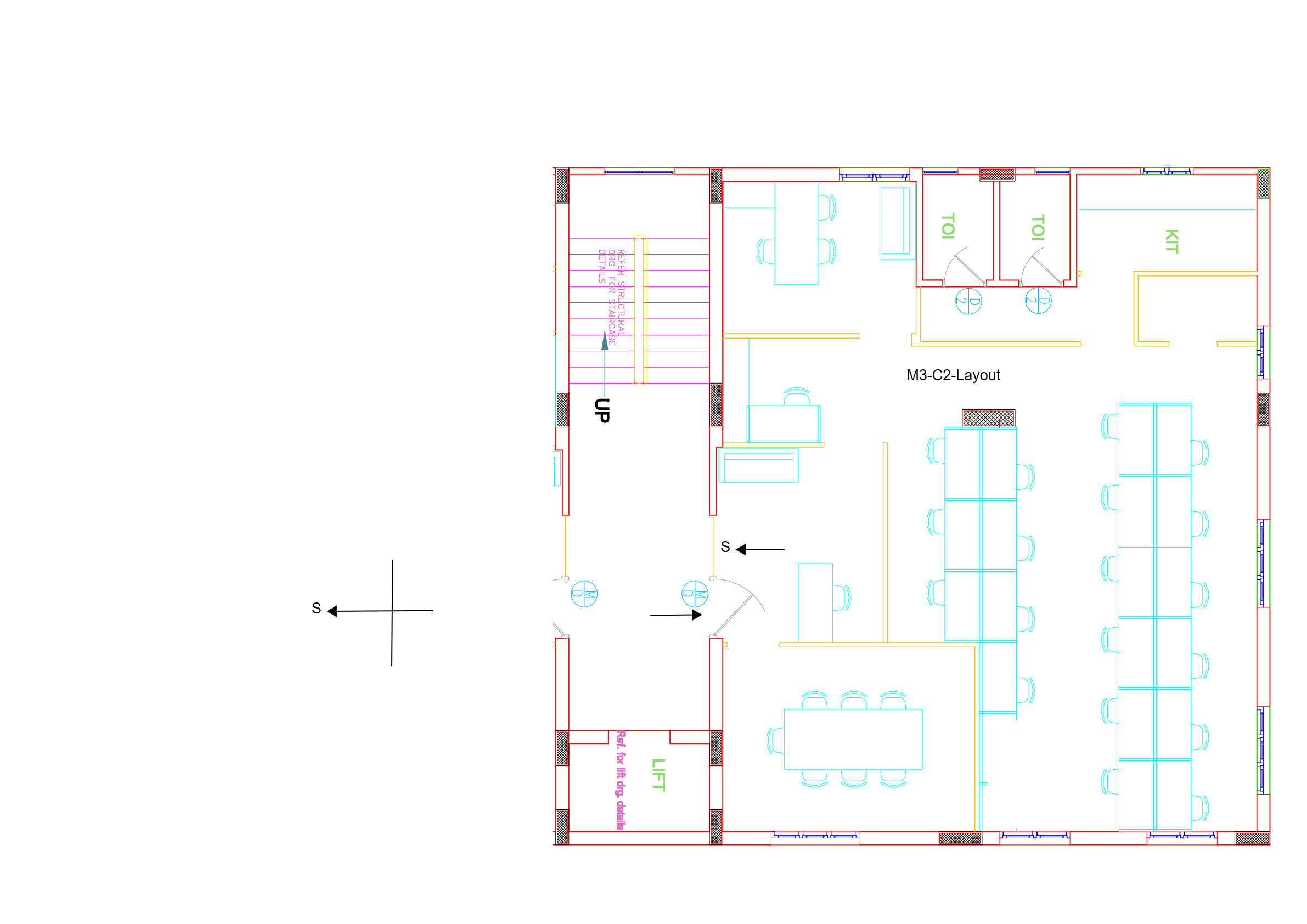
Plug and Play Office Space having 28 Workstations, 3 manager cabins, 1 Conference Room, Pantry, Lift, Ac, 2 Car Park....

Plug and Play Office Space having 28 Workstations, 3 manager cabins, 1 Conference Room, Pantry, Lift, Ac, 2 Car Park....

Plug and play Office Space having 40 Workstations, 2 Manager Cabins, 1 Discussion Room, 1 Conference Room, Reception,....