S p a c e s & M o r e

Property Details

( C-627 ) Plug & Play Office Space for rent At Madhapur

Madhapur

₹75000.00

Property Description

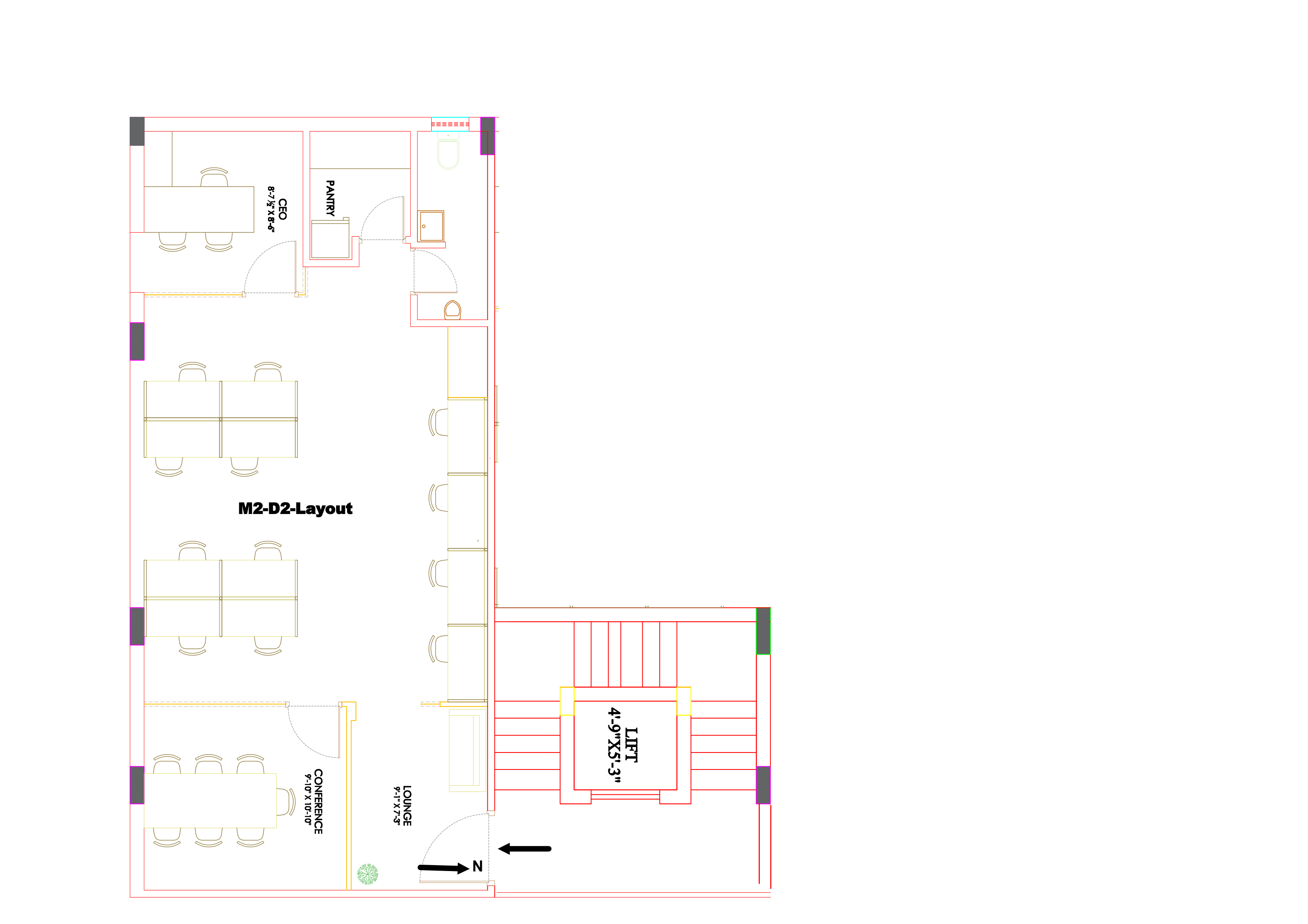
Plug and Play Office having 12 Work Stations, 1 Manager cabin, 1 Conference Room, Pantry, reception, Ac, Lift, 1 washroom, 1 Car Parking, Onsite Manager, Security, 100 DG Backup.

Property Details

  • Commercial Subtype

    Offices (Spaces&More)
  • Commercial Furinished

    Plug & Play
  • Built Up Area

    1000
  • Property Facing

    N
  • Location in City

    madhapur
  • Landmark

    Opp Dhurgam Cheruvu ,Near Ncc Office
  • Price Per(Sft)

    75
  • Maintenance (Sft/Tot)

    8
  • Deposit (Months)

    6
  • Lock-In(Months)

    12
  • No. of Work stations

    12
  • No. of Manager Cabins

    1
  • No. of Dicussion Rooms


  • No. of Conference Room

    1
  • Available From

    Later
  • Available Date

    2025-10-26
  • Floor

    4
  • Total Floors

    4
  • No. of Bathrooms

    1
  • Age(Years)


  • Boardroom


  • Reception

    Yes
  • Pantry

    Yes
  • Server Room

    Yes
  • Executive Name

    Sastry
  • Suitable For

    Office

Amenities

  • DG Backup: 100%
  • AC: Split
  • No. of Car Parking: 1
  • Lift : Yes
  • Security : Yes
  • Onsite Manager : Yes
  • Lunch Room : Yes

Floor Plan

  • Floor Plan

Landmark GPS Location

Video

Similar Properties

Commercial
Madhapur
Start From

₹75000.00

Plug and Play Office having 12 Work Stations, 1 Manager cabin, 1 Conference Room, Pantry, reception, Ac, Lift, 1 wash....

Looking to Buy a New Property or
Sell an Existing One?