S p a c e s & M o r e

Property Details

( C-538 ) Plug & Play Office Space for rent At Banjara Hills

Banjara Hills

₹120000.00

Property Description

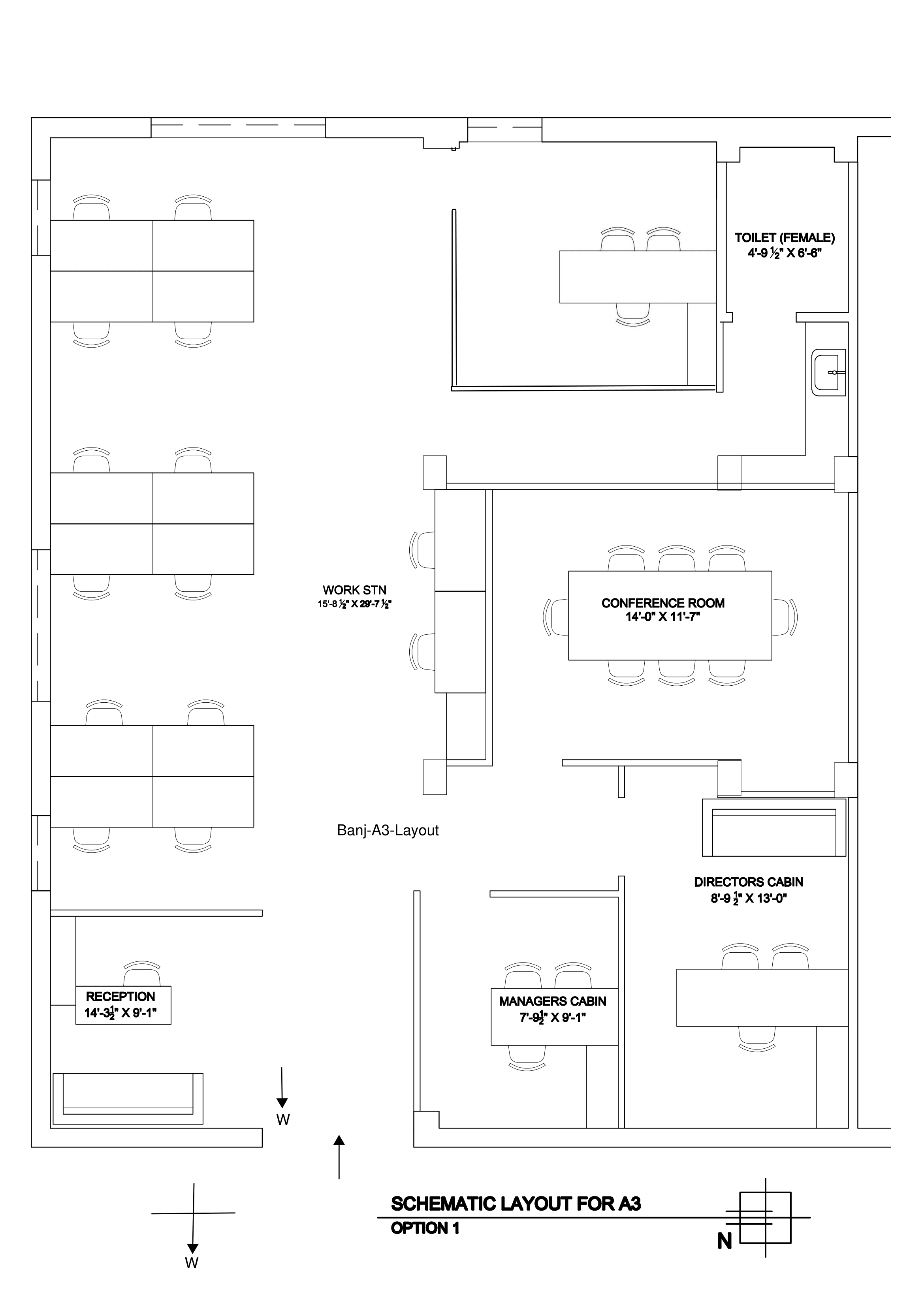
Plug and Play Office Space Having 14 Workstations, 3 Manager Cabins, 1 Conference Room, Pantry, Lift, Ac, Security, Onsite Manager, 100 DG Backup.

Property Details

  • Commercial Subtype

    Offices (Spaces&More)
  • Commercial Furinished

    Plug & Play
  • Built Up Area

    1600
  • Property Facing

    W
  • Location in City

    banjara-hills
  • Landmark

    Near KBR Park
  • Price Per(Sft)

    75
  • Maintenance (Sft/Tot)

    8
  • Deposit (Months)

    6
  • Lock-In(Months)

    12
  • No. of Work stations

    14
  • No. of Manager Cabins

    3
  • No. of Dicussion Rooms


  • No. of Conference Room

    1
  • Available From

    Later
  • Available Date

    2026-02-28
  • Floor

    1
  • Total Floors

    3
  • No. of Bathrooms

    1
  • Age(Years)


  • Boardroom


  • Reception

    Yes
  • Pantry

    Yes
  • Server Room

    Yes
  • Executive Name

    Pavan
  • Suitable For

    Office

Amenities

  • DG Backup: 100%
  • AC: Split
  • No. of Car Parking: 1
  • Lift : Yes
  • Security : Yes
  • Onsite Manager : Yes
  • Lunch Room : Yes

Floor Plan

  • Floor Plan

Landmark GPS Location

Similar Properties

Looking to Buy a New Property or
Sell an Existing One?