S p a c e s & M o r e

Property Details

( C-298320 ) Plug & Play Office Space For rent At Madhapur

Madhapur

₹108750.00

Property Description

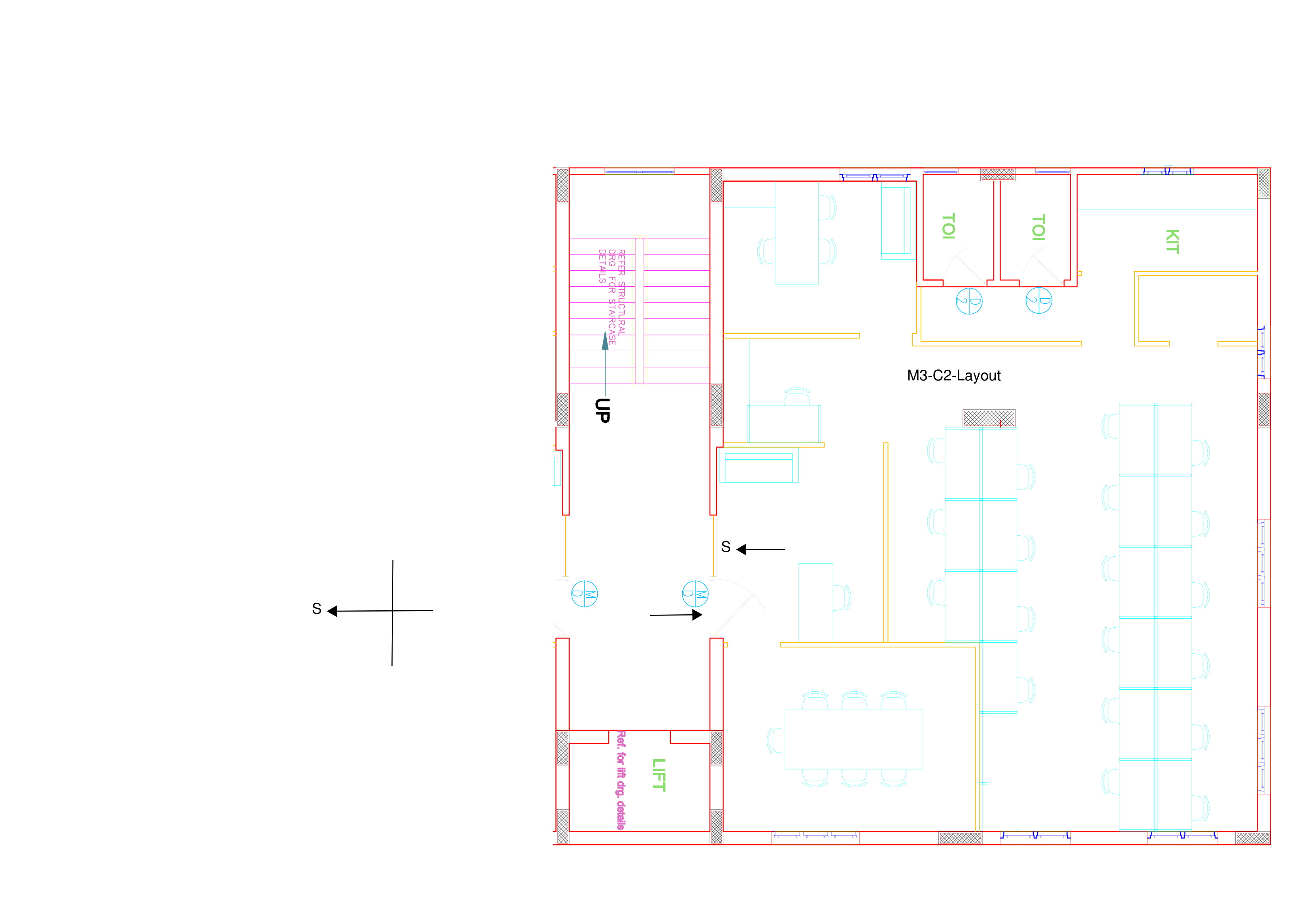
Plug and Play Office Space Having 19 Workstations, 1 Manager Cabin, 1 Conference Room, Reception, Pantry, Lift, AC, 1 Car Parking, 2 Washrooms, Onsite Manager, Security, 100 DG Backup.

Property Details

  • Commercial Subtype

    Offices (Spaces&More)
  • Commercial Furinished

    Plug & Play
  • Built Up Area

    1450
  • Property Facing

    S
  • Location in City

    madhapur
  • Landmark

    Near durgam cheruvu
  • Price Per(Sft)

    75
  • Maintenance (Sft/Tot)

    8
  • Deposit (Months)

    6
  • Lock-In(Months)

    12
  • No. of Work stations

    19
  • No. of Manager Cabins

    1
  • No. of Dicussion Rooms


  • No. of Conference Room

    1
  • Available From

    Later
  • Available Date

    2026-02-25
  • Floor

    3
  • Total Floors

    5
  • No. of Bathrooms

    2
  • Age(Years)

    5
  • Boardroom


  • Reception

    Yes
  • Pantry

    Yes
  • Server Room

    Yes
  • Executive Name

    Satish Kumar
  • Suitable For

    Office

Amenities

  • DG Backup: 100%
  • AC: Split
  • No. of Car Parking: 1
  • Lift : Yes
  • Security : Yes
  • Onsite Manager : Yes
  • Lunch Room : Yes

Floor Plan

  • Floor Plan

Landmark GPS Location

Similar Properties

Looking to Buy a New Property or
Sell an Existing One?