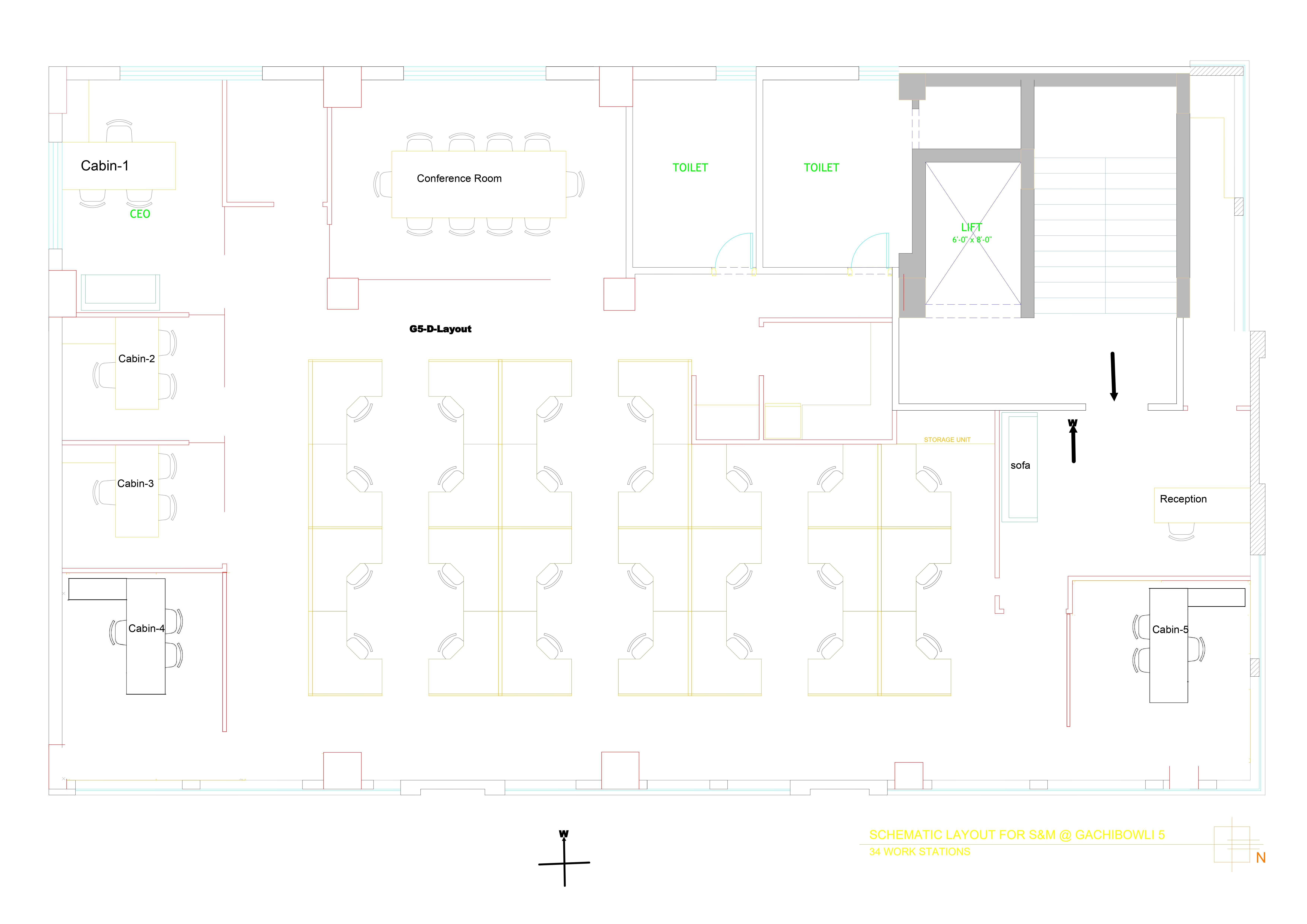
Plug and Play Office Space Having 25 Workstations ( Can Be Changed To 33), 3 Manager Cabins ( Can be Changed To 5), 1 Conference Room, Reception, Pantry, Ac, Lift, Server room, 2 Washrooms, 2 Car Parking, Onsite Manager, Security, Lunch room, 100 DG Backup.

















