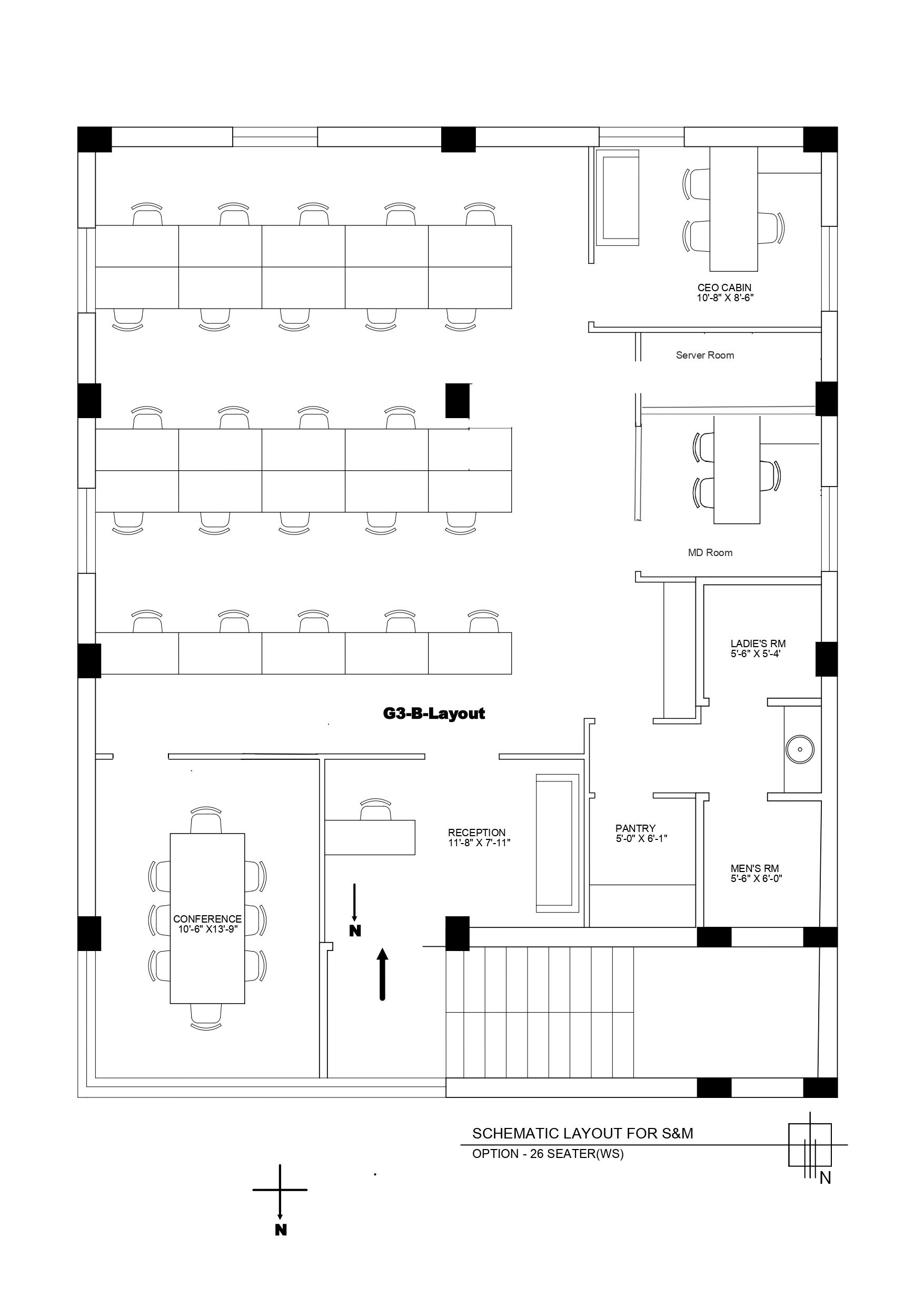
Plug and Play Office Space Having 24 Workstations, 2 manager cabins, 1 Conference Room, Reception, Pantry, Ac, Lift, Security, Lunch Room, Server room, 2 car Parking, 2 Washrooms, Onsite Manager, 100 DG backup.











Plug and Play Office Space Having 24 Workstations, 2 manager cabins, 1 Conference Room, Reception, Pantry, Ac, Lift, ....

Plug and Play Office Space Having 20 Workstations, 2 Manager Cabins, 1 Conference room, Reception, Pantry, Ac, Lift, ....